Domani martedì 27 gennaio 2026, alle ore 20.30 nel centro Tommasoli assembla pubblica per la ciclabile di Borgo Venezia.
Domani martedì 27 gennaio 2026, alle ore 20.30 nel centro Tommasoli di via Perini, 3 si terrà un’assembla pubblica per esporre alla cittadinanza il nuovo percorso ciclabile che attraverserà il quartiere di Borgo Venezia tra via Colonello Fincato e via Montorio.
Questo nuovo itinerario, B15, dall’investimento di 500mila euro, è stato progettato con l’obiettivo di creare una continuità con i tratti di ciclabili già esistenti, in modo tale da realizzare un percorso continuo, sicuro e facile da individuare
“Il piano delle ciclabili mira a riconnettere – sottolinea l’assessore alla mobilità e all’ambiente, Tommaso Ferrari – i tratti esistenti per darvi continuità e protezione. In questo caso è il tratto che congiunge Via Betteloni con la ciclabile attuale, dall’Esselunga di via Colonello Fincato verso Poiano e la Valpantena al fine di mettere in collegamento l’ottava e la sesta circoscrizione fino a Porta Vescovo in continuità e in sicurezza”.
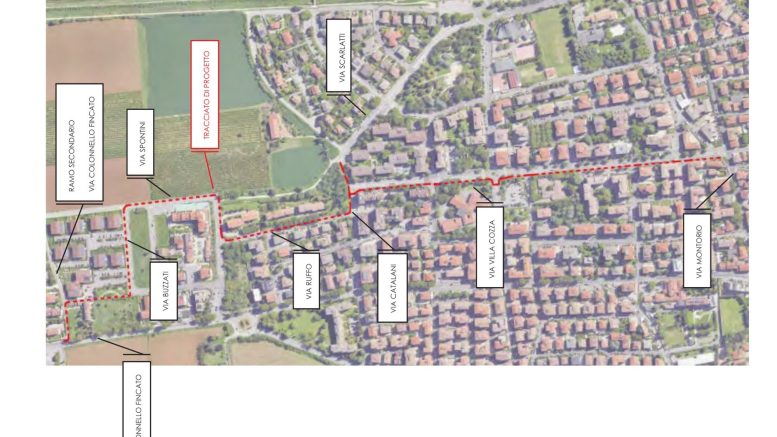
Il tracciato della ciclabile.
Il tracciato della nuova ciclabile, lungo 1,6 chilometri prevede la partenza da via Fincato, all’altezza del supermercato Esselunga, fino a via Montorio, andando ad interessare le seguenti vie: Via Belvedere (che diventa a senso unico) / via Fincato (ramo secondario che parte dalla principale nell’intersezione con via Braille), corridoio ciclo-pedonale esistente di collegamento tra via Fincato e via Buzzati, via Spontini, via Ruffo (che diventa a senso unico), via Catalani per giungere in via Villa Cozza.
Ad eccezione del primo tratto su via Belvedere che presenterà una corsia riservata, non protetta, alla sola utenza ciclabile nel senso di marcia in direzione di via Fincato, il resto del percorso sarà bidirezionale in sede propria, adeguatamente separato da cordoli di protezione, illuminato e segnalato con segnaletica verticale e orizzontale.
All’incontro saranno presenti l’assessore alla mobilità, Tommaso Ferrari, il consigliere comunale, Michele Bresaola, la presidente della Sesta Circoscrizione, Rita Andriani e la coordinatrice della commissione mobilità della Sesta Circoscrizione, Valentina Melillo.
“Il progetto realizza un percorso ciclabile continuo – aggiunge Rita Andriani, presidente della 6^ Circoscrizione – che collega la Valpantena con l’Ottava, la Sesta e la Prima Circoscrizione, connettendosi alle ciclabili di via Betteloni e di via San Felice Extra fino a Montorio. Salvo un breve tratto iniziale, il tracciato è interamente protetto, illuminato e segnalato, e mette in rete scuole, cinema e principali servizi del quartiere, garantendo spostamenti sicuri e continui tra le tre circoscrizion8”.

Le ciclabili nel Pums.
L’amministrazione ha scelto un approccio pragmatico alla realizzazione delle piste ciclabili previste dal Pums approvato dalla precedente amministrazione. Il piano prevedeva circa 100 chilometri di nuove ciclabili, ma l’obiettivo non è stato quello di realizzarle tutte indistintamente ma di creare creare propri assi ciclabili continui, più funzionali e utili per chi si muove in bicicletta ogni giorno. Vengono quindi individuati alcuni assi principali. Uno riguarda Verona Sud e il collegamento con Basso Acquar, che sarà presentato nei prossimi mesi. Un altro asse interessa l’area nord-ovest, collegando Parona a Ponte Garibaldi. Un terzo riguarda la zona est, tra San Michele e San Martino Buon Albergo, mettendo in continuità tratti già presenti.
Infine, l’asse di cui si parlerà domani è quello della Valpantena: serve a completare la ciclabile che scende da Poiano e che attualmente si interrompe bruscamente all’altezza dell’Esselunga di via Fincato. L’intervento ha quindi lo scopo di eliminare un’interruzione critica e rendere il percorso finalmente continuo.I lavori inizieranno entro una decina di giorni.
